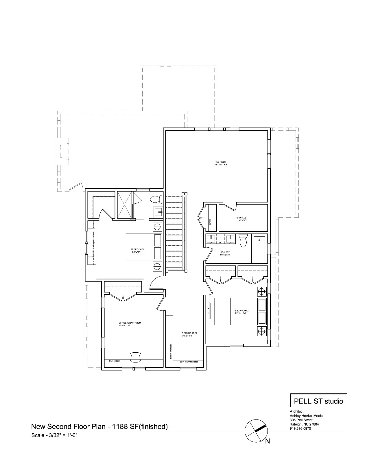
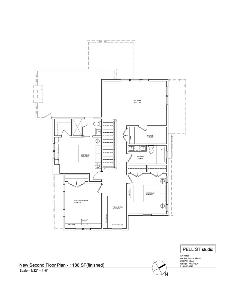
C:UsersahenkelmorrisDropboxPELL ST Studiosecond ave, knight Published 08/19/2014 at 1307 × 1635 in Second Avenue Like Loading...