Get ready for an interior transformation! This quaint little bungalow has only 950 sf. It has been through several owners and multiple plan changes. The last major change to the house was in the 1960’s, so a fresh outlook on space planning and a modernization of the home was long overdue. The current owners are a dash of light beer mixed with a dallop of red wine, the new configuration of space and refined yet snazzy finishes will create the perfect environment.
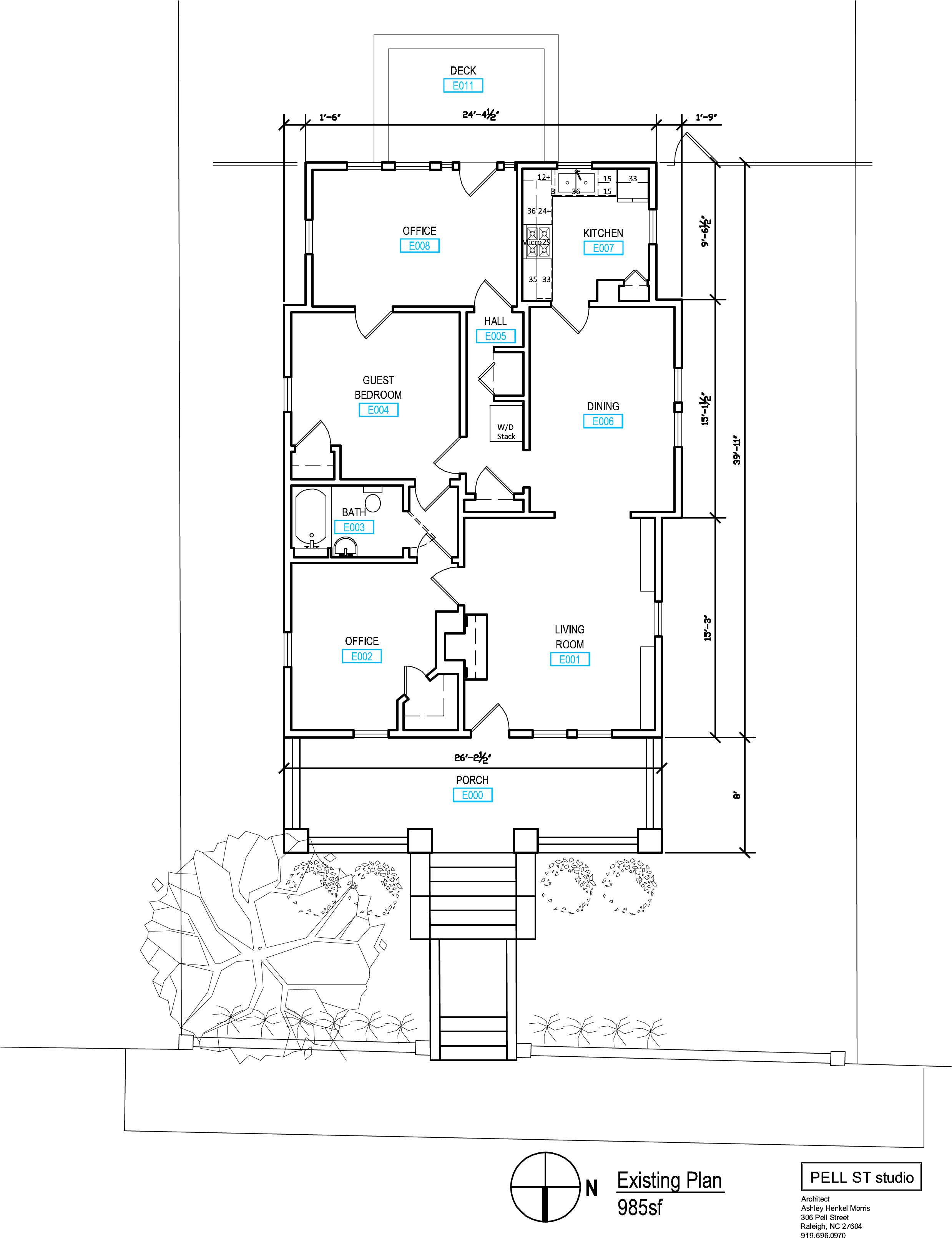
Several changes to the existing plan are needed to create a more functional layout. The small hall that adjoins the two bedrooms currently has been incorporated into the bathroom. We intend to allow this hall to go back to its primary function – being a hallway. You will be able to access the hall from the Living Room. From the hall you can access the two bedrooms and bathroom independently of each other. The Living Room will open up to the new kitchen (currently the dining room). This house originally had a central hall (the hall was used for storage and laundry), which we have removed to accomodate a nice large kitchen. The kitchen now becomes the heart of the house verus and after thought. The existing kitchen and office were actually part of the 1960’s plan change. This area was a back porch that was framed in to create more interior square footage. The addition was not well done and will be removed. This makes room for a brand new master suite (lacking from the current plan), a new dining room, and a new screened porch. Now the house will have over 1250 sf and several luxuries that it did not have before (i.e. 2 bathrooms, large walk-in closet, a functional guest bathroom, master suite, large kitchen, and a screened in porch).
This project is complete – new photos have been posted below and on the home page. The slideshow below has before images.

































































