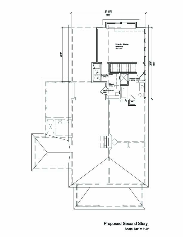
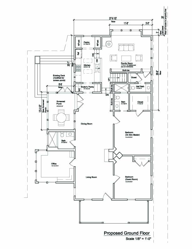
This picturesque 1500sf bungalow resides in Historic Oakwood. After thinking about pursuing a larger home, the current owner decided to invest her time and money into the house and the neighborhood that she loves. The addition/renovation will enhance and celebrate the great existing aspects of the house – the open flow of rooms, the view from front to back, and the natural light throughout. Several additions have been added in the past and have now been removed to accommodate a new larger modern kitchen with a vaulted ceiling and skylights, brand new family room with designed millwork for entertainment, a large downstairs master suite, and an upstairs master suite with a laundry room and large walk-in closet. This house will be perfect for the current owner and the next.
Construction: Jokisch Construction
Images: Pell ST studio, PLLC





































